Maison neuve à
Arcizac-Adour
(65360) Référence :
VC2370537_2
Prix du projet : Maison avec Terrain
prix 220 000 €
- 4 pièces
- 3 chambres
- Surface maison 90 m2
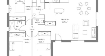
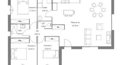
Arcizac-Adour : maison F4 (90 m²) à vendre
IDÉALEMENT SITUÉE - MAISON 4 PIÈCES NEUVE
À vendre à quelques kilomètres au Sud de Tarbes, notre agence Maisons Bruno Petit à Juillan est ravie de vous proposer cette maison de 4 pièces de plain-pied de 90 m², idéalement située dans Arcizac-Adour (65360).
Son intérieur offre trois chambres, une cuisine et une salle de bains. Cette maison est neuve.
Le terrain de la propriété s'étend sur 1 800 m².
Elle est située dans un quartier prisé.
Elle est à vendre pour la somme de 220 000 €.
N'hésitez pas à prendre contact avec notre agence (CAUSSIEU Vincent : 06-10-82-28-65) pour toute question sur le bien ou sur les démarches à suivre. Maisons Bruno Petit GHPA Juillan vous accompagne dans tous vos projets immobiliers et à toutes les étapes de votre projet.
Mentions légales
Terrain proposé par un partenaire foncier selon disponibilités et autorisation de publicité au prix de 40 000 €. Hors droit d'enregistrement et frais de notaire. Terrain + Maison proposés au prix de 180 000 € (Hors branchements et raccordements, papiers peints, peintures, revêtement de sol dans les chambres. Tarif modifiable sans préavis). Etiquette énergie : A. Différents modèles disponibles pour ce terrain. Assurances et garanties du constructeur (RC professionnelle, décennale, dommage ouvrage, garantie de remboursement de l'acompte, livraison à prix et délai convenu) : https://www.maisons-bruno-petit.com/mentions-legales/.Agence Bruno Petit GHPA de Juillan (65290)
- Téléphone :
- 05 62 32 91 45
- Adressse :
- 9 route de Lourdes
65290 Juillan, France
