Maison neuve à
Arcizac-Adour
(65360) Référence :
VC2370537_4
Prix du projet : Maison avec Terrain
prix 222 500 €
- 4 pièces
- 3 chambres
- Surface maison 90 m2
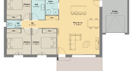
Maison de 4 pièces (90 m²) à vendre à Arcizac-Adour
IDÉALEMENT SITUÉE - MAISON 4 PIÈCES NEUVE
En vente :A quelques kilomètres de Tarbes, Maisons Bruno Petit à Juillan vous présente cette maison de 4 pièces de plain-pied de 90 m² et de 1 800 m² de terrain, idéalement située à Arcizac-Adour (65360).
Elle est composée de trois chambres, d'une cuisine et d'une salle de bains. Cette maison est neuve.
Elle se trouve dans un quartier attractif.
Elle est proposée à l'achat pour 222 500 €.
Prenez contact avec Vincent CAUSSIEU (tél : 06-10-82-28-65) pour obtenir de plus amples informations sur la propriété ou sur les démarches à suivre.
Mentions légales
Terrain proposé par un partenaire foncier selon disponibilités et autorisation de publicité au prix de 40 000 €. Hors droit d'enregistrement et frais de notaire. Terrain + Maison proposés au prix de 182 500 € (Hors branchements et raccordements, papiers peints, peintures, revêtement de sol dans les chambres. Tarif modifiable sans préavis). Etiquette énergie : A. Différents modèles disponibles pour ce terrain. Assurances et garanties du constructeur (RC professionnelle, décennale, dommage ouvrage, garantie de remboursement de l'acompte, livraison à prix et délai convenu) : https://www.maisons-bruno-petit.com/mentions-legales/.Agence Bruno Petit GHPA de Juillan (65290)
- Téléphone :
- 05 62 32 91 45
- Adressse :
- 9 route de Lourdes
65290 Juillan, France
