Maison neuve à
Arcizac-Adour
(65360) Référence :
VC2448363_1
Prix du projet : Maison avec Terrain
prix 278 000 €
- 5 pièces
- 3 chambres
- Surface maison 100 m2
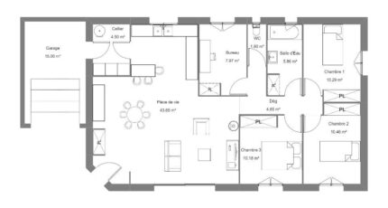
Arcizac-Adour : maison de 5 pièces (100 m²) en vente
IDÉALEMENT SITUÉE - MAISON 5 PIÈCES NEUVE
À vendre : à 10 km de Tarbes, nous vous proposons cette maison de 5 pièces de 100 m² et de 1 127 m² de terrain avec vue sur jardin idéalement située dans Arcizac-Adour (65360).
Il s'agit d'une maison de plain-pied. Son intérieur se divise en trois chambres, une cuisine et une salle de bains. La maison est neuve.
Elle se trouve dans un quartier attractif. Il y a l'École Maternelle d'Arcizac-Adour à moins de 10 minutes à pied.
Elle est proposée à l'achat pour 278 000 €.
Contactez Vincent CAUSSIEU (tél : 06-10-82-28-65) pour plus de renseignements sur la propriété, sur les démarches à suivre ou sur les modalités de vente.
Mentions légales
Terrain proposé par un partenaire foncier selon disponibilités et autorisation de publicité au prix de 70 000 €. Hors droit d'enregistrement et frais de notaire. Terrain + Maison proposés au prix de 278 000 € (Hors branchements et raccordements, papiers peints, peintures, revêtement de sol dans les chambres. Tarif modifiable sans préavis). Etiquette énergie : A. Différents modèles disponibles pour ce terrain. Assurances et garanties du constructeur (RC professionnelle, décennale, dommage ouvrage, garantie de remboursement de l'acompte, livraison à prix et délai convenu) : https://www.maisons-bruno-petit.com/mentions-legales/.Agence Bruno Petit GHPA de Juillan (65290)
- Téléphone :
- 05 62 32 91 45
- Adressse :
- 9 route de Lourdes
65290 Juillan, France
