Maison neuve à
Arcizac-Adour
(65360) Référence :
VC2448363_2
Prix du projet : Maison avec Terrain
prix 299 500 €
- 5 pièces
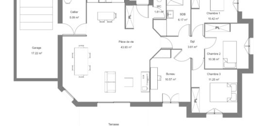
- 4 chambres
- Surface maison 104 m2
Arcizac-Adour : maison T5 (104 m²) en vente
IDÉALEMENT SITUÉE - MAISON 5 PIÈCES NEUVE
En vente : située à deux pas de Tarbes, nous vous présentons, idéalement située dans Arcizac-Adour (65360), cette maison de 5 pièces de plain-pied de 104 m² et de 1 127 m² de terrain.
Elle est composée de quatre chambres, d'une cuisine et d'une salle de bains. Cette maison est neuve.
Elle se situe dans un quartier convoité. Il y a l'École Maternelle d'Arcizac-Adour à moins de 10 minutes à pied.
Elle est à vendre pour la somme de 299 500 €.
Prenez contact avec Vincent CAUSSIEU (06-10-82-28-65) pour tout renseignement sur la maison, sur les démarches à suivre ou sur les modalités de vente.
Mentions légales
Terrain proposé par un partenaire foncier selon disponibilités et autorisation de publicité au prix de 70 000 €. Hors droit d'enregistrement et frais de notaire. Terrain + Maison proposés au prix de 299 500 € (Hors branchements et raccordements, papiers peints, peintures, revêtement de sol dans les chambres. Tarif modifiable sans préavis). Etiquette énergie : A. Différents modèles disponibles pour ce terrain. Assurances et garanties du constructeur (RC professionnelle, décennale, dommage ouvrage, garantie de remboursement de l'acompte, livraison à prix et délai convenu) : https://www.maisons-bruno-petit.com/mentions-legales/.Agence Bruno Petit GHPA de Juillan (65290)
- Téléphone :
- 05 62 32 91 45
- Adressse :
- 9 route de Lourdes
65290 Juillan, France
