Maison neuve à
Arcizac-Adour
(65360) Référence :
VC2448363_3
Prix du projet : Maison avec Terrain
prix 274 500 €
- 4 pièces
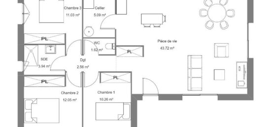
- 3 chambres
- Surface maison 90 m2
VENTE d'une maison T4 (90 m²) à Arcizac-Adour
IDÉALEMENT SITUÉE - MAISON 4 PIÈCES NEUVE
À deux pas de Tarbes, à vendre idéalement située dans Arcizac-Adour (65360), votre agence Maisons Bruno Petit à Juillan est ravie de vous proposer cette maison de 4 pièces de plain-pied de 90 m².
Son intérieur inclut trois chambres, une cuisine et une salle de bains. La maison est neuve.
Le terrain du bien est de 1 127 m².
Elle se trouve dans un secteur convoité. L'École Maternelle d'Arcizac-Adour est implantée à moins de 10 minutes à pied.
Elle est à vendre pour la somme de 274 500 €.
Prenez contact avec notre agence (CAUSSIEU Vincent : 06-10-82-28-65) pour toute question sur cette maison, sur les modalités de vente ou sur les démarches à suivre. Concrétisez vos projets immobiliers avec Maisons Bruno Petit à Juillan.
Mentions légales
Terrain proposé par un partenaire foncier selon disponibilités et autorisation de publicité au prix de 70 000 €. Hors droit d'enregistrement et frais de notaire. Terrain + Maison proposés au prix de 274 500 € (Hors branchements et raccordements, papiers peints, peintures, revêtement de sol dans les chambres. Tarif modifiable sans préavis). Etiquette énergie : A. Différents modèles disponibles pour ce terrain. Assurances et garanties du constructeur (RC professionnelle, décennale, dommage ouvrage, garantie de remboursement de l'acompte, livraison à prix et délai convenu) : https://www.maisons-bruno-petit.com/mentions-legales/.Agence Bruno Petit GHPA de Juillan (65290)
- Téléphone :
- 05 62 32 91 45
- Adressse :
- 9 route de Lourdes
65290 Juillan, France
