Maison neuve à
Argelès-Gazost
(65400) Référence :
VC2310541_1
Prix du projet : Maison avec Terrain
prix 358 000 €
- 6 pièces
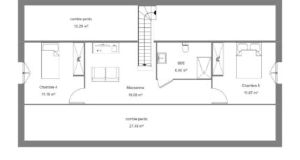
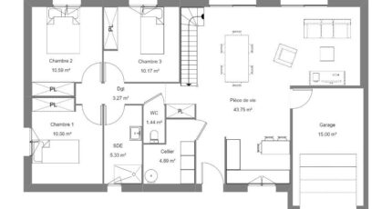
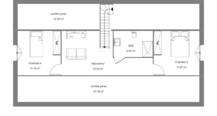
- 5 chambres
- Surface maison 125 m2
Maison de 6 pièces (125 m²) à vendre à Gez
IDÉALEMENT SITUÉE - MAISON 6 PIÈCES NEUVE
En vente : A côté d'ARGELES-GAZOST,, nous sommes heureux de vous présenter cette maison de 6 pièces de 90 m² et de 1 268 m² de terrain idéalement située dans Gez (65400).
Il s'agit d'une maison de 2 niveaux. Elle est composée de cinq chambres, d'une cuisine et de deux salles de bains. Cette maison est neuve.
Elle se trouve dans un secteur prisé. Une école élémentaire y est implantée.
Son prix de vente est de 358 000 €.
N'hésitez pas à prendre contact avec notre agence (Vincent CAUSSIEU : 06-10-82-28-65) pour toute information sur la maison. Faites de vos projets immobiliers une réalité avec Maisons Bruno Petit GHPA Juillan.
Mentions légales
Terrain proposé par un partenaire foncier selon disponibilités et autorisation de publicité au prix de 91 000 €. Hors droit d'enregistrement et frais de notaire. Maison proposée, avec un contrat de construction de maison individuelle, dans le cadre de la loi du 19/12/1990, au prix de 267 000 € (Hors branchements et raccordements, papiers peints, peintures, revêtement de sol dans les chambres, qui sont chiffrés dans les travaux qui restent à charge du client. Tarif modifiable sans préavis). Étiquette énergie : A. Différents modèles disponibles pour ce terrain. Assurances et garanties du constructeur comprises (RC professionnelle, décennale, dommage ouvrage).Agence Bruno Petit GHPA de Juillan (65290)
- Téléphone :
- 05 62 32 91 45
- Adressse :
- 9 route de Lourdes
65290 Juillan, France
