Maison neuve à
Assat (64510) Référence : JNA2258579_2

Prix du projet : Maison avec Terrain

prix 218 000 €

  • 4 pièces
  • 3 chambres
  • Surface maison 85 m2

VENTE : maison de 4 pièces (85 m²) à Assat
IDÉALEMENT SITUÉE - MAISON 4 PIÈCES NEUVE
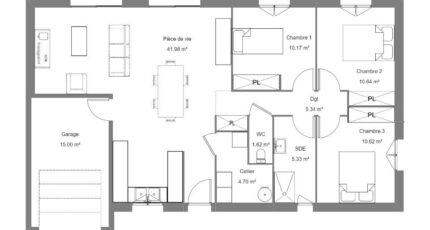
En vente proche de l'Espagne et à quelques kilomètres de Pau, nous vous présentons cette maison de 4 pièces de plain-pied de 85 m² et de 480 m² de terrain idéalement située dans Assat (64510).
Elle est composée de trois chambres, d'une cuisine et d'une salle de bains. La maison est neuve.
Elle se trouve dans un quartier recherché. Des écoles maternelles et élémentaires sont implantées à moins de 10 minutes à pied, tout comme dont l'École Elementaire Publique. Côté transports en commun, il y a la gare Assat juste à côté. Il y a un accès à l'autoroute A64 à 9 km. On trouve une boulangerie, un commerce et un bureau de poste à quelques minutes.
Elle est proposée à l'achat pour 218 000 €.
Contactez Jean-Noel ANDERE (tél : 05-59-32-12-24) pour obtenir de plus amples renseignements sur cette maison, sur les démarches à suivre ou sur les modalités de vente. Donnez vie à vos projets immobiliers avec Maisons Bruno Petit GHPA Lons.

Mentions légales

Terrain proposé par un partenaire foncier selon disponibilités et autorisation de publicité au prix de 55 000 €. Hors droit d'enregistrement et frais de notaire. Maison proposée, avec un contrat de construction de maison individuelle, dans le cadre de la loi du 19/12/1990, au prix de 163 000 € (Hors branchements et raccordements, papiers peints, peintures, revêtement de sol dans les chambres, qui sont chiffrés dans les travaux qui restent à charge du client. Tarif modifiable sans préavis). Étiquette énergie : A. Différents modèles disponibles pour ce terrain. Assurances et garanties du constructeur comprises (RC professionnelle, décennale, dommage ouvrage).

Contactez l'agence de Lons

05 59 32 12 24

    * Champs obligatoires

    Vos informations sont traitées par HEXAOM et transmises à un conseiller commercial qui vous contactera afin de répondre à votre demande. Les plans et images présentés sur notre site sont la propriété d’HEXAOM et ne peuvent pas être reproduits sans son accord. Pour retrouver notre politique de protection des données personnelles et exercer vos droits conformément à la « loi informatique et liberté » cliquez-ici.