Maison neuve à
Aureilhan
(65800) Référence :
LB2389729_1
Prix du projet : Maison avec Terrain
prix 315 000 €
- 5 pièces
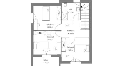
- 4 chambres
- Surface maison 123 m2
Maison T5 (123 m²) à vendre à Aureilhan
IDÉALEMENT SITUÉE - MAISON 5 PIÈCES NEUVE
En vente : idéalement située, découvrez cette maison de 5 pièces de 123 m² et de612m2 de terrain.
Elle est proposée à l'achat pour 315000 €.
Découvrez le modèle ROQUELAURE personnalisable, adapté à vos goûts.
Le modèle ROQUELAURE est optimisé pour obtenir le meilleur rapport qualité/prix tout en respectant la norme RE2020.
Le prix indiqué est hors frais de raccordements, de branchements, d'adaptation au sol et de notaire sur le terrain. Ce prix est conseillé et soumis à variation en fonction des secteurs géographiques. Il n'inclut pas les options, ni les aménagements extérieurs et intérieurs (éléments de décoration, mobilier, cuisine équipée...). Garanties et assurances obligatoires incluses (voir détails en agence).
Disponibilité et prix du terrain à vérifier avec notre partenaire foncier. Pour tout renseignement, contactez votre Conseiller Commerciale Laurent BAZIN 06.21.35.99.37 de chez Bruno PETIT à Juillan.
Mentions légales
Terrain proposé par un partenaire foncier selon disponibilités et autorisation de publicité au prix de 64 000 €. Hors droit d'enregistrement et frais de notaire. Terrain + Maison proposés au prix de 251 000 € (Hors branchements et raccordements, papiers peints, peintures, revêtement de sol dans les chambres. Tarif modifiable sans préavis). Etiquette énergie : A. Différents modèles disponibles pour ce terrain. Assurances et garanties du constructeur (RC professionnelle, décennale, dommage ouvrage, garantie de remboursement de l'acompte, livraison à prix et délai convenu) : https://www.maisons-bruno-petit.com/mentions-legales/.Agence Bruno Petit GHPA de Juillan (65290)
- Téléphone :
- 05 62 32 91 45
- Adressse :
- 9 route de Lourdes
65290 Juillan, France
