Maison neuve à
Baudreix (64800) Référence : JNA2423793_3

Prix du projet : Maison avec Terrain

prix 330 000 €

  • 5 pièces
  • 4 chambres
  • Surface maison 123 m2

VENTE : maison de 5 pièces (123 m²) à Baudreix
IDÉALEMENT SITUÉE - MAISON 5 PIÈCES NEUVE
À 40 km de la frontière espagnole et à quelques kilomètres de Pau, nous sommes ravis de vous présenter cette maison de 5 pièces de 123 m² à vendre idéalement située dans Baudreix (64800).
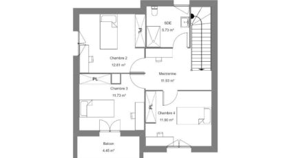
Il s'agit d'une maison de 2 niveaux. Son intérieur offre quatre chambres, une cuisine et deux salles de bains. La maison est neuve.
Le terrain du bien s'étend sur 8 100 m².
Elle se trouve dans un secteur convoité. Il y a trois établissements scolaires à moins de 10 minutes à pied et, comme le Lycée Agricole Privé de Baudreix ou le Lycée Agricole Privé de Baudreix-Site de Nay. Côté transports, on trouve deux gares (Coarraze-Nay et Assat) à moins de 10 minutes en voiture. L'autoroute A64 est accessible à 9 km. Il y a un tennis à proximité.
Elle est proposée à l'achat pour 330 000 €.
N'hésitez pas à prendre contact avec notre agence (Jean-Noel ANDERE : 05-59-32-12-24) pour plus d'informations sur cette maison. Maisons Bruno Petit GHPA Lons est là pour vous accompagner dans toutes vos démarches.

Mentions légales

Terrain proposé par un partenaire foncier selon disponibilités et autorisation de publicité au prix de 76 000 €. Hors droit d'enregistrement et frais de notaire. Terrain + Maison proposés au prix de 330 000 € (Hors branchements et raccordements, papiers peints, peintures, revêtement de sol dans les chambres. Tarif modifiable sans préavis). Etiquette énergie : A. Différents modèles disponibles pour ce terrain. Assurances et garanties du constructeur (RC professionnelle, décennale, dommage ouvrage, garantie de remboursement de l'acompte, livraison à prix et délai convenu) : https://www.maisons-bruno-petit.com/mentions-legales/.

Contactez l'agence de Lons

05 59 32 12 24

    * Champs obligatoires

    Vos informations sont traitées par HEXAOM et transmises à un conseiller commercial qui vous contactera afin de répondre à votre demande. Les plans et images présentés sur notre site sont la propriété d’HEXAOM et ne peuvent pas être reproduits sans son accord. Pour retrouver notre politique de protection des données personnelles et exercer vos droits conformément à la « loi informatique et liberté » cliquez-ici.