Maison neuve à
Beauchalot
(31360) Référence :
VP2373260_1
Prix du projet : Maison avec Terrain
prix 190 000 €
- 4 pièces
- 3 chambres
- Surface maison 90 m2
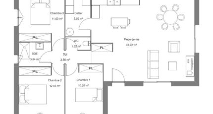
VENTE d'une maison de 4 pièces (90 m²) à Beauchalot
MAISON 4 PIÈCES NEUVE
À vendre : proche de l'Espagne, à Beauchalot (31360), nous sommes ravis de vous présenter cette maison de 4 pièces de plain-pied de 90 m² et de 641 m² de terrain. Elle comporte trois chambres, une cuisine et une salle de bains.
Cette maison est neuve.
Une école primaire est implantée dans le quartier. Côté transports, on trouve trois gares (Labarthe-Inard, Lestelle-de-Saint-Martory et Saint-Martory) à moins de 10 minutes en voiture. On trouve un accès à l'autoroute A64 à 2 km. Il y a une boulangerie et une boucherie-charcuterie dans les environs.
Son prix de vente est de 190 000 €.
Prenez contact avec Valérie PUJADE (tél : 06-66-12-13-51) pour toute question sur la maison, sur les démarches à suivre ou sur les modalités de vente. Maisons Bruno Petit GHPA Saint-Gaudens vous accompagne dans tous vos projets immobiliers et dans toutes vos démarches.
Mentions légales
Terrain proposé par un partenaire foncier selon disponibilités et autorisation de publicité au prix de 27 000 €. Hors droit d'enregistrement et frais de notaire. Terrain + Maison proposés au prix de 163 000 € (Hors branchements et raccordements, papiers peints, peintures, revêtement de sol dans les chambres. Tarif modifiable sans préavis). Etiquette énergie : A. Différents modèles disponibles pour ce terrain. Assurances et garanties du constructeur (RC professionnelle, décennale, dommage ouvrage, garantie de remboursement de l'acompte, livraison à prix et délai convenu) : https://www.maisons-bruno-petit.com/mentions-legales/.Agence Bruno Petit GHPA de Saint-Gaudens (31800)
- Téléphone :
- 05 61 95 55 25
- Adressse :
- 124 rue Jean Adoue
31800 Saint-Gaudens, France
