Maison neuve à
Bordères-sur-l'Échez
(65320) Référence :
VC2449467_1
Prix du projet : Maison avec Terrain
prix 238 000 €
- 4 pièces
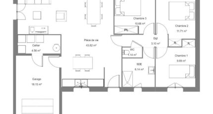
- 3 chambres
- Surface maison 90 m2
VENTE : maison T4 (90 m²) à Bordères-sur-l'Échez
IDÉALEMENT SITUÉE - MAISON 4 PIÈCES NEUVE
À vendre : à 5 min de Tarbes, votre agence Maisons Bruno Petit à Juillan est ravie de vous proposer cette maison de 4 pièces de 90 m² et de 522 m² de terrain avec vue sur jardin idéalement située dans Bordères-sur-l'Échez (65320).
Cette maison est de plain-pied. Elle propose trois chambres, une cuisine et une salle de bains. Elle possède également un garage.
La maison est neuve.
La maison se trouve dans un secteur convoité. Il y a l'École Maternelle Charles Perrault et l'École Élémentaire Arc En Ciel à moins de 10 minutes à pied. Il y a des commerces à quelques minutes.
Son prix de vente est de 238 000 €.
Prenez contact avec notre constructeur (CAUSSIEU Vincent : 06-10-82-28-65) pour obtenir de plus amples renseignements sur la maison, sur les démarches à suivre ou sur les modalités de vente.
Mentions légales
Terrain proposé par un partenaire foncier selon disponibilités et autorisation de publicité au prix de 57 420 €. Hors droit d'enregistrement et frais de notaire. Terrain + Maison proposés au prix de 238 000 € (Hors branchements et raccordements, papiers peints, peintures, revêtement de sol dans les chambres. Tarif modifiable sans préavis). Etiquette énergie : A. Différents modèles disponibles pour ce terrain. Assurances et garanties du constructeur (RC professionnelle, décennale, dommage ouvrage, garantie de remboursement de l'acompte, livraison à prix et délai convenu) : https://www.maisons-bruno-petit.com/mentions-legales/.Agence Bruno Petit GHPA de Juillan (65290)
- Téléphone :
- 05 62 32 91 45
- Adressse :
- 9 route de Lourdes
65290 Juillan, France
