Maison neuve à
Bordes-de-Rivière
(31210) Référence :
VP2322530_1
Prix du projet : Maison avec Terrain
prix 240 000 €
- 5 pièces
- 4 chambres
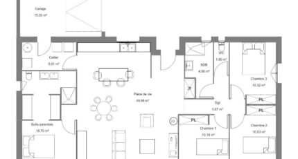
- Surface maison 115 m2
Laissez vous séduire par cette maison moderne aux lignes élégantes, parfaitement pensée pour offrir confort, fonctionnalité et bien être au quotidien.
Cette maison de plein pied de 115m2 propose une distribution optimisée et des volumes généreux pour répondre aux besoins des familles modernes.
GRANDES OUVERTES pour une maison baignée de lumière., alliant confort et efficacité énergétique.
Grande Piece de vie ouverte et traversante de 50m2, 3 chambres avec placard intégrés, 1 suite parentale avec salle d'eau privatise et dressing, 1 salle de bain principale et 1 WC séparé.
Cellier attenant à la cuisine et au garage, praticité garantie !
UN lieu de vie agréable au quotidien comme pour accueillir vos proches.
Pour votre étude personnalisée, vous pouvez contacter directement Valérie PUJADE au 06.66.12.13.51.
Mentions légales
Terrain proposé par un partenaire foncier selon disponibilités et autorisation de publicité au prix de 40 000 €. Hors droit d'enregistrement et frais de notaire. Maison proposée, avec un contrat de construction de maison individuelle, dans le cadre de la loi du 19/12/1990, au prix de 200 000 € (Hors branchements et raccordements, papiers peints, peintures, revêtement de sol dans les chambres, qui sont chiffrés dans les travaux qui restent à charge du client. Tarif modifiable sans préavis). Étiquette énergie : A. Différents modèles disponibles pour ce terrain. Assurances et garanties du constructeur comprises (RC professionnelle, décennale, dommage ouvrage).Agence Bruno Petit GHPA de Saint-Gaudens (31800)
- Téléphone :
- 05 61 95 55 25
- Adressse :
- 124 rue Jean Adoue
31800 Saint-Gaudens, France
