Maison neuve à
Bougarber (64230) Référence : JNA2411840_3

Prix du projet : Maison avec Terrain

prix 335 000 €

  • 5 pièces
  • 4 chambres
  • Surface maison 123 m2

VENTE : maison T5 (123 m²) à Bougarber
IDÉALEMENT SITUÉE - MAISON 5 PIÈCES NEUVE
À 13 km de Pau, votre agence Maisons Bruno Petit GHPA Lons est ravie de vous présenter cette maison de 5 pièces de 123 m² idéalement située dans Bougarber (64230).
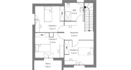
Cette maison compte 2 niveaux. Son intérieur inclut quatre chambres, une cuisine et deux salles de bains. La maison est neuve.
Le terrain du bien est de 820 m².
Cette maison se situe dans un quartier convoité. On y trouve une école primaire. Côté transports en commun, il y a la gare Artix à moins de 10 minutes en voiture. Il y a un accès à l'autoroute A64 à 6 km. On trouve un tennis à proximité de la maison.
Son prix de vente est de 335 000 €.
Contactez Jean-Noel ANDERE (05-59-32-12-24) pour obtenir de plus amples informations sur la maison. Maisons Bruno Petit GHPA Lons est là pour vous accompagner dans tous vos projets immobiliers.

Mentions légales

Terrain proposé par un partenaire foncier selon disponibilités et autorisation de publicité au prix de 80 000 €. Hors droit d'enregistrement et frais de notaire. Terrain + Maison proposés au prix de 335 000 € (Hors branchements et raccordements, papiers peints, peintures, revêtement de sol dans les chambres. Tarif modifiable sans préavis). Etiquette énergie : A. Différents modèles disponibles pour ce terrain. Assurances et garanties du constructeur (RC professionnelle, décennale, dommage ouvrage, garantie de remboursement de l'acompte, livraison à prix et délai convenu) : https://www.maisons-bruno-petit.com/mentions-legales/.

Contactez l'agence de Lons

05 59 32 12 24

    * Champs obligatoires

    Vos informations sont traitées par HEXAOM et transmises à un conseiller commercial qui vous contactera afin de répondre à votre demande. Les plans et images présentés sur notre site sont la propriété d’HEXAOM et ne peuvent pas être reproduits sans son accord. Pour retrouver notre politique de protection des données personnelles et exercer vos droits conformément à la « loi informatique et liberté » cliquez-ici.