Maison neuve à
Campuzan
(65230) Référence :
VP2443592_4
Prix du projet : Maison avec Terrain
prix 188 000 €
- 4 pièces
- 3 chambres
- Surface maison 90 m2
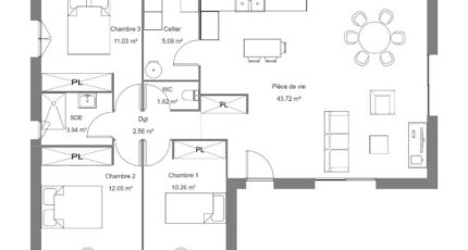
VENTE : maison F4 (90 m²) à Campuzan
MAISON 4 PIÈCES NEUVE - PROCHE DE TARBES
En vente à deux pas de Tarbes, notre agence Maisons Bruno Petit GHPA Lannemezan est ravie de vous présenter à Campuzan (65230), cette maison de 4 pièces de plain-pied de 90 m². Elle inclut trois chambres, une cuisine et une salle de bains.
Le terrain du bien est de 1 627 m².
La maison est neuve.
Il y a un tennis à quelques minutes.
Elle est à vendre pour la somme de 188 000 €.
Contactez Valérie PUJADE (06-66-12-13-51) pour toute question sur la maison. Maisons Bruno Petit GHPA Lannemezan vous accompagne à toutes les étapes de l'achat et dans tous vos projets immobiliers.
Mentions légales
Terrain proposé par un partenaire foncier selon disponibilités et autorisation de publicité au prix de 25 000 €. Hors droit d'enregistrement et frais de notaire. Terrain + Maison proposés au prix de 188 000 € (Hors branchements et raccordements, papiers peints, peintures, revêtement de sol dans les chambres. Tarif modifiable sans préavis). Etiquette énergie : A. Différents modèles disponibles pour ce terrain. Assurances et garanties du constructeur (RC professionnelle, décennale, dommage ouvrage, garantie de remboursement de l'acompte, livraison à prix et délai convenu) : https://www.maisons-bruno-petit.com/mentions-legales/.Agence Bruno Petit GHPA de Lannemezan (65300)
- Téléphone :
- 05 62 98 63 87
- Adressse :
- 155, rue Alsace Lorraine
65300 Lannemezan, France
