Maison neuve à
Lannemezan
(65300) Référence :
VP2323807_1
Prix du projet : Maison avec Terrain
prix 163 000 €
- 3 pièces
- 2 chambres
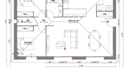
- Surface maison 80 m2
Belle maison plain pied de 80m2.Profitez d'une grande pièce de vie fonctionnelle et baignée de lumière, un coin nuit séparé avec 2 chambres équipées de placards, 1 salle de bain avec grande douche à l'italienne, 1 WC séparé.
Construite selon les normes RE2020, cette maison vous garantit efficacité énergétique, confort thermique et économie d'énergie. Pour votre étude personnalisée, vous pouvez contacter Valérie PUJADE au 06.66.12.13.51.
Mentions légales
Terrain proposé par un partenaire foncier selon disponibilités et autorisation de publicité au prix de 28 000 €. Hors droit d'enregistrement et frais de notaire. Maison proposée, avec un contrat de construction de maison individuelle, dans le cadre de la loi du 19/12/1990, au prix de 135 000 € (Hors branchements et raccordements, papiers peints, peintures, revêtement de sol dans les chambres, qui sont chiffrés dans les travaux qui restent à charge du client. Tarif modifiable sans préavis). Étiquette énergie : A. Différents modèles disponibles pour ce terrain. Assurances et garanties du constructeur comprises (RC professionnelle, décennale, dommage ouvrage).Agence Bruno Petit GHPA de Saint-Gaudens (31800)
- Téléphone :
- 05 61 95 55 25
- Adressse :
- 124 rue Jean Adoue
31800 Saint-Gaudens, France
