Maison neuve à
Lannemezan
(65300) Référence :
VP2432735_2
Prix du projet : Maison avec Terrain
prix 270 000 €
- 5 pièces
- 4 chambres
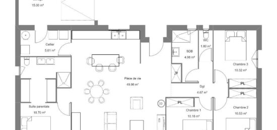
- Surface maison 103 m2
Maison contemporaine de 103m2 habitable, pensée pour un confort optimal. Une grande pièce de vie très lumineuse donnant sur une terrasse couverte. Un coin nuit composé de 3 chambres et un bureau. 1 salle de bain avec grande douche à l'italienne, 1 wc séparé.
Un cellier/buanderie communiquant avec le garage.
Pour votre projet de construction, vous pouvez contacter directement Valérie PUJADE au 06.66.12.13.51.
Nous vous proposerons un plan personnalisé adapté à vos besoins et votre budget.
Mentions légales
Terrain proposé par un partenaire foncier selon disponibilités et autorisation de publicité au prix de 54 000 €. Hors droit d'enregistrement et frais de notaire. Terrain + Maison proposés au prix de 270 000 € (Hors branchements et raccordements, papiers peints, peintures, revêtement de sol dans les chambres. Tarif modifiable sans préavis). Etiquette énergie : A. Différents modèles disponibles pour ce terrain. Assurances et garanties du constructeur (RC professionnelle, décennale, dommage ouvrage, garantie de remboursement de l'acompte, livraison à prix et délai convenu) : https://www.maisons-bruno-petit.com/mentions-legales/.Agence Bruno Petit GHPA de Lannemezan (65300)
- Téléphone :
- 05 62 98 63 87
- Adressse :
- 155, rue Alsace Lorraine
65300 Lannemezan, France
