Maison neuve à
Lespouey
(65190) Référence :
VC2319321_1
Prix du projet : Maison avec Terrain
prix 248 700 €
- 4 pièces
- 3 chambres
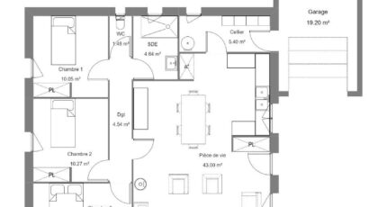
- Surface maison 90 m2
VENTE : maison T4 (90 m²) à Lespouey
EMPLACEMENT PRIVILÉGIÉ - MAISON 4 PIÈCES NEUVE
À quelques kilomètres de Tarbes, venez découvrir cette maison de 4 pièces de 90 m² avec vue sur les Pyrénées bénéficiant d'un emplacement privilégié dans Lespouey (65190).
Cette maison est de plain-pied. Conçue de plain-pied, elle compte trois chambres, une cuisine et une salle de bains. Cette maison est neuve.
Le terrain de la propriété est de 1 700 m².
Cette maison est située dans un quartier recherché. Une école élémentaire y est implantée. Côté transports en commun, il y a deux gares (Tournay et Tarbes) à moins de 10 minutes en voiture. L'autoroute A64 et la nationale N21 sont accessibles à moins de 9 km. On trouve un tennis et une boucherie-charcuterie à quelques minutes du logement.
Elle est proposée à l'achat pour 248 700 €.
N'hésitez pas à prendre contact avec Vincent CAUSSIEU (06-10-82-28-65) pour obtenir de plus amples informations sur la maison.
Mentions légales
Terrain proposé par un partenaire foncier selon disponibilités et autorisation de publicité au prix de 59 000 €. Hors droit d'enregistrement et frais de notaire. Maison proposée, avec un contrat de construction de maison individuelle, dans le cadre de la loi du 19/12/1990, au prix de 189 700 € (Hors branchements et raccordements, papiers peints, peintures, revêtement de sol dans les chambres, qui sont chiffrés dans les travaux qui restent à charge du client. Tarif modifiable sans préavis). Étiquette énergie : A. Différents modèles disponibles pour ce terrain. Assurances et garanties du constructeur comprises (RC professionnelle, décennale, dommage ouvrage).Agence Bruno Petit GHPA de Juillan (65290)
- Téléphone :
- 05 62 32 91 45
- Adressse :
- 9 route de Lourdes
65290 Juillan, France
