Maison neuve à
Louit
(65350) Référence :
LB2315898_1
Prix du projet : Maison avec Terrain
prix 287 000 €
- 5 pièces
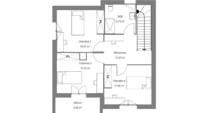
- 4 chambres
- Surface maison 123 m2
Maison T5 (123 m²) à vendre à Louit
IDÉALEMENT SITUÉE - MAISON 5 PIÈCES NEUVE
En vente : idéalement située, découvrez cette maison de 5 pièces de 123 m² et de 938m2 de terrain.
Elle est proposée à l'achat pour 287000 €.
Pour tout renseignement, contactez votre Conseiller Commerciale Laurent BAZIN 06.21.35.99.37 de chez Bruno PETIT à Juillan. Découvrez le modèle ROQUELAURE personnalisable, adapté à vos goûts.
Le modèle ROQUELAURE est optimisé pour obtenir le meilleur rapport qualité/prix tout en respectant la norme RE2020.
Le prix indiqué est hors frais de raccordements, de branchements, d'adaptation au sol et de notaire sur le terrain. Ce prix est conseillé et soumis à variation en fonction des secteurs géographiques. Il n'inclut pas les options, ni les aménagements extérieurs et intérieurs (éléments de décoration, mobilier, cuisine équipée...). Garanties et assurances obligatoires incluses (voir détails en agence).
Disponibilité et prix du terrain à vérifier avec notre partenaire foncier
Mentions légales
Terrain proposé par un partenaire foncier selon disponibilités et autorisation de publicité au prix de 32 000 €. Hors droit d'enregistrement et frais de notaire. Maison proposée, avec un contrat de construction de maison individuelle, dans le cadre de la loi du 19/12/1990, au prix de 255 000 € (Hors branchements et raccordements, papiers peints, peintures, revêtement de sol dans les chambres, qui sont chiffrés dans les travaux qui restent à charge du client. Tarif modifiable sans préavis). Étiquette énergie : A. Différents modèles disponibles pour ce terrain. Assurances et garanties du constructeur comprises (RC professionnelle, décennale, dommage ouvrage).Agence Bruno Petit GHPA de Juillan (65290)
- Téléphone :
- 05 62 32 91 45
- Adressse :
- 9 route de Lourdes
65290 Juillan, France
