Maison neuve à
Marciac
(32230) Référence :
VC2310539_2
Prix du projet : Maison avec Terrain
prix 189 800 €
- 4 pièces
- 3 chambres
- Surface maison 90 m2
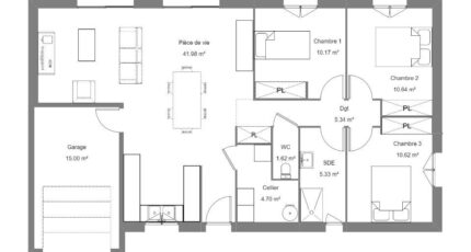
VENTE d'une maison de 4 pièces (90 m²) à Marciac
IDÉALEMENT SITUÉE - MAISON 4 PIÈCES NEUVE
À vendre idéalement située dans Marciac (32230), nous vous présentons cette maison de 4 pièces de plain-pied de 90 m² et de 567 m² de terrain. Conçue de plain-pied, elle se divise en trois chambres, une cuisine et une salle de bains.
La maison est neuve.
Cette maison est située dans un secteur recherché. Trois établissements scolaires sont implantés à moins de 10 minutes à pied, tout comme dont le Collège Aretha Franklin et l'École Maternelle Publique. Il y a deux bassins de natation, un tennis, des commerces, deux boulangeries, un supermarché, une supérette et un bureau de poste à quelques minutes. Enfin, le marché Place de l'Hte de Ville anime les environs chaque mercredi matin.
Elle est à vendre pour la somme de 189 800 €.
Contactez notre agence (CAUSSIEU Vincent : 06-10-82-28-65) pour tout renseignement sur la maison ou sur les modalités de vente. Maisons Bruno Petit GHPA Juillan est là pour vous accompagner dans toutes vos démarches.
Mentions légales
Terrain proposé par un partenaire foncier selon disponibilités et autorisation de publicité au prix de 21 500 €. Hors droit d'enregistrement et frais de notaire. Maison proposée, avec un contrat de construction de maison individuelle, dans le cadre de la loi du 19/12/1990, au prix de 168 300 € (Hors branchements et raccordements, papiers peints, peintures, revêtement de sol dans les chambres, qui sont chiffrés dans les travaux qui restent à charge du client. Tarif modifiable sans préavis). Étiquette énergie : A. Différents modèles disponibles pour ce terrain. Assurances et garanties du constructeur comprises (RC professionnelle, décennale, dommage ouvrage).Agence Bruno Petit GHPA de Juillan (65290)
- Téléphone :
- 05 62 32 91 45
- Adressse :
- 9 route de Lourdes
65290 Juillan, France
