Maison neuve à
Odos
(65310) Référence :
LB2389594_1
Prix du projet : Maison avec Terrain
prix 239 900 €
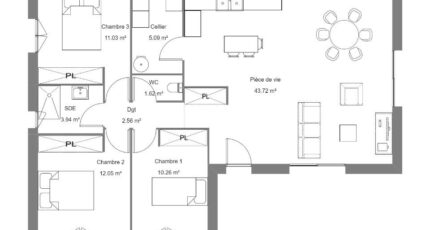
- 5 pièces
- 4 chambres
- Surface maison 90 m2
VENTE : maison 100 m2 avec 4 chambres à Odos
IDÉALEMENT SITUÉE - MAISON 5 PIÈCES
Maisons Bruno Petit GHPA Juillan vous propose cette maison de plain-pied de 100 m².
Cette maison compte trois chambres, une cuisine et une salle de bains.
Le terrain du bien est de 758 m².
Maison proposée à partir de 239960€. A composer selon votre projet.
N'hésitez pas à prendre contact avec notre agence (Laurent BAZIN : 06.21.35.99.37) pour toute question sur la maison, sur les démarches à suivre ou sur les modalités de vente.
Mentions légales
Terrain proposé par un partenaire foncier selon disponibilités et autorisation de publicité au prix de 69 720 €. Hors droit d'enregistrement et frais de notaire. Terrain + Maison proposés au prix de 170 180 € (Hors branchements et raccordements, papiers peints, peintures, revêtement de sol dans les chambres. Tarif modifiable sans préavis). Etiquette énergie : A. Différents modèles disponibles pour ce terrain. Assurances et garanties du constructeur (RC professionnelle, décennale, dommage ouvrage, garantie de remboursement de l'acompte, livraison à prix et délai convenu) : https://www.maisons-bruno-petit.com/mentions-legales/.Agence Bruno Petit GHPA de Juillan (65290)
- Téléphone :
- 05 62 32 91 45
- Adressse :
- 9 route de Lourdes
65290 Juillan, France
