Maison neuve à
Plagne
(31220) Référence :
VP2317266_2
Prix du projet : Maison avec Terrain
prix 222 000 €
- 5 pièces
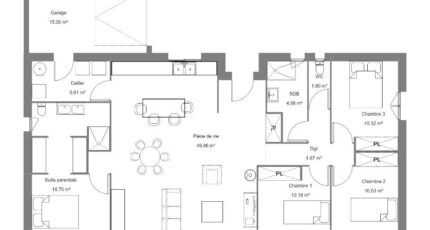
- 4 chambres
- Surface maison 115 m2
Plagne : maison de 5 pièces (115 m²) à vendre
MAISON 5 PIÈCES NEUVE
En vente à quelques kilomètres de l'Espagne, nous vous présentons cette maison de 5 pièces de plain-pied de 115 m² et de 771 m² de terrain à Plagne (31220). Elle propose quatre chambres, une cuisine et deux salles de bains.
La maison est neuve.
Des établissements scolaires (de la maternelle au lycée) sont implantés à moins de 10 minutes en voiture, tout comme une crèche à moins de 10 minutes à pied. Niveau transports en commun, on trouve les gares Martres-Tolosane, Cazères et Boussens à moins de 10 minutes en voiture. L'autoroute A64 est accessible à 7 km. Il y a des tennis, trois bassins de natation, quatre bibliothèques, des commerces, des boulangeries, quatre supermarchés, trois bureaux de poste et des épiceries à proximité du bien. Enfin, le marché Centre-Ville a lieu tous les samedis matin.
Son prix de vente est de 222 000 €.
N'hésitez pas à prendre contact avec notre agence (Valérie PUJADE : 06-66-12-13-51) pour toute question sur cette maison, sur les démarches à suivre ou sur les modalités de vente. Maisons Bruno Petit GHPA Saint-Gaudens vous accompagne dans tous vos projets immobiliers et à toutes les étapes de votre projet.
Mentions légales
Terrain proposé par un partenaire foncier selon disponibilités et autorisation de publicité au prix de 30 000 €. Hors droit d'enregistrement et frais de notaire. Maison proposée, avec un contrat de construction de maison individuelle, dans le cadre de la loi du 19/12/1990, au prix de 192 000 € (Hors branchements et raccordements, papiers peints, peintures, revêtement de sol dans les chambres, qui sont chiffrés dans les travaux qui restent à charge du client. Tarif modifiable sans préavis). Étiquette énergie : A. Différents modèles disponibles pour ce terrain. Assurances et garanties du constructeur comprises (RC professionnelle, décennale, dommage ouvrage).Agence Bruno Petit GHPA de Saint-Gaudens (31800)
- Téléphone :
- 05 61 95 55 25
- Adressse :
- 124 rue Jean Adoue
31800 Saint-Gaudens, France
