Maison neuve à
Pouyastruc
(65350) Référence :
VC2310536_1
Prix du projet : Maison avec Terrain
prix 249 500 €
- 4 pièces
- 3 chambres
- Surface maison 90 m2
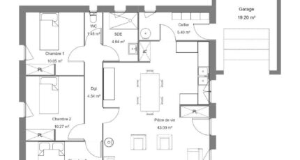
Maison de 4 pièces (90 m²) à vendre à Pouyastruc
IDÉALEMENT SITUÉE - MAISON 4 PIÈCES NEUVE
À quelques kilomètres de Tarbes, ayez le coup de coeur pour cette maison de 4 pièces de 90 m² avec vue sur la campagne à vendre idéalement située dans Pouyastruc (65350).
Cette maison est de plain-pied. Elle dispose de trois chambres, d'une cuisine et d'une salle de bains. Cette maison est neuve.
Le terrain de la propriété s'étend sur 2 160 m².
La propriété se situe dans un secteur convoité. Une école primaire y est implantée. Côté transports, il y a la gare Tarbes à moins de 10 minutes en voiture. L'autoroute A64 et la nationale N21 sont accessibles à moins de 8 km. On trouve une boucherie-charcuterie, un bureau de poste et une épicerie à proximité de la maison.
Elle est à vendre pour la somme de 249 500 €.
N'hésitez pas à prendre contact avec notre agence (CAUSSIEU Vincent : 06-10-82-28-65) pour toute information sur la maison.
Mentions légales
Terrain proposé par un partenaire foncier selon disponibilités et autorisation de publicité au prix de 60 000 €. Hors droit d'enregistrement et frais de notaire. Maison proposée, avec un contrat de construction de maison individuelle, dans le cadre de la loi du 19/12/1990, au prix de 189 500 € (Hors branchements et raccordements, papiers peints, peintures, revêtement de sol dans les chambres, qui sont chiffrés dans les travaux qui restent à charge du client. Tarif modifiable sans préavis). Étiquette énergie : A. Différents modèles disponibles pour ce terrain. Assurances et garanties du constructeur comprises (RC professionnelle, décennale, dommage ouvrage).Agence Bruno Petit GHPA de Juillan (65290)
- Téléphone :
- 05 62 32 91 45
- Adressse :
- 9 route de Lourdes
65290 Juillan, France
