Maison neuve à
Saint-Martory
(31360) Référence :
VP2309264_2
Prix du projet : Maison avec Terrain
prix 228 000 €
- 5 pièces
- 4 chambres
- Surface maison 115 m2
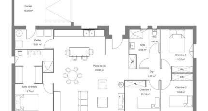
VENTE : maison de 5 pièces (115 m²) à Saint-Martory
MAISON 5 PIÈCES NEUVE
À vendre : localisée proche de l'Espagne, à Saint-Martory (31360), nous vous proposons cette maison de 5 pièces de plain-pied de 115 m².
Son intérieur inclut quatre chambres, une cuisine et deux salles de bains. La maison est neuve.
Le terrain de la propriété s'étend sur 1 286 m².
L'École Primaire Publique Louise Michel se trouve à moins de 10 minutes à pied, tout comme une structure d'accueil pour la petite enfance. Côté transports en commun, il y a la gare Saint-Martory juste à côté. Il y a un accès à l'autoroute A64 à 2 km. On trouve un tennis, quatre commerces, une boulangerie, un supermarché, un bureau de poste et une boucherie-charcuterie à quelques minutes à peine.
Elle est à vendre pour la somme de 228 000 €.
Prenez contact avec Valérie PUJADE (tél : 06-66-12-13-51) pour plus d'informations sur cette maison, sur les démarches à suivre ou sur les modalités de vente. Maisons Bruno Petit GHPA Saint-Gaudens est là pour vous accompagner à toutes les étapes de votre projet.
Mentions légales
Terrain proposé par un partenaire foncier selon disponibilités et autorisation de publicité au prix de 36 000 €. Hors droit d'enregistrement et frais de notaire. Terrain + Maison proposés au prix de 192 000 € (Hors branchements et raccordements, papiers peints, peintures, revêtement de sol dans les chambres. Tarif modifiable sans préavis). Etiquette énergie : A. Différents modèles disponibles pour ce terrain. Assurances et garanties du constructeur (RC professionnelle, décennale, dommage ouvrage, garantie de remboursement de l'acompte, livraison à prix et délai convenu) : https://www.maisons-bruno-petit.com/mentions-legales/.Agence Bruno Petit GHPA de Saint-Gaudens (31800)
- Téléphone :
- 05 61 95 55 25
- Adressse :
- 124 rue Jean Adoue
31800 Saint-Gaudens, France
