Maison neuve à
Siradan
(65370) Référence :
VP2345857_3
Prix du projet : Maison avec Terrain
prix 192 000 €
- 4 pièces
- 3 chambres
- Surface maison 90 m2
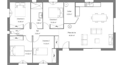
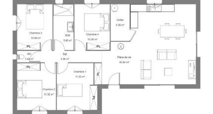
Maison de 4 pièces (90 m²) en vente à Siradan
MAISON 4 PIÈCES NEUVE
En vente à quelques kilomètres de l'Espagne, nous vous présentons à Siradan (65370), cette maison de 4 pièces de plain-pied de 90 m².
Conçue de plain-pied, elle offre trois chambres, une cuisine et une salle de bains. La maison est neuve.
Le terrain de la propriété est de 2 081 m².
Une école primaire est implantée dans le quartier et une structure d'accueil pour les enfants en bas âge. Les autoroutes A64 et A645 sont accessibles à moins de 15 km.
Elle est à vendre pour la somme de 192 000 €.
Contactez notre agence (Valérie PUJADE : 06-66-12-13-51) pour tout renseignement sur la maison ou sur les modalités de vente.
Mentions légales
Terrain proposé par un partenaire foncier selon disponibilités et autorisation de publicité au prix de 29 000 €. Hors droit d'enregistrement et frais de notaire. Maison proposée, avec un contrat de construction de maison individuelle, dans le cadre de la loi du 19/12/1990, au prix de 163 000 € (Hors branchements et raccordements, papiers peints, peintures, revêtement de sol dans les chambres, qui sont chiffrés dans les travaux qui restent à charge du client. Tarif modifiable sans préavis). Étiquette énergie : A. Différents modèles disponibles pour ce terrain. Assurances et garanties du constructeur comprises (RC professionnelle, décennale, dommage ouvrage).Agence Bruno Petit GHPA de Lannemezan (65300)
- Téléphone :
- 05 62 98 63 87
- Adressse :
- 155, rue Alsace Lorraine
65300 Lannemezan, France
