Maison neuve à
Siradan
(65370) Référence :
VP2345857_4
Prix du projet : Maison avec Terrain
prix 221 000 €
- 5 pièces
- 4 chambres
- Surface maison 115 m2
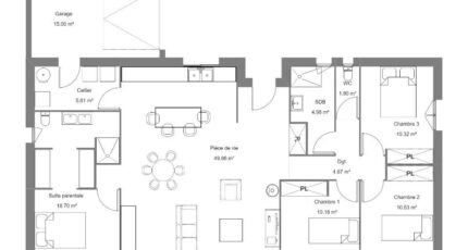
VENTE : maison de 5 pièces (115 m²) à Siradan
MAISON 5 PIÈCES NEUVE
À 16 km de la frontière espagnole, en vente à Siradan (65370), venez découvrir cette maison de 5 pièces de plain-pied de 115 m² et de 2 081 m² de terrain.
Elle offre quatre chambres, une cuisine et deux salles de bains. La maison est neuve.
Une école primaire est implantée dans le quartier et une crèche. Les autoroutes A64 et A645 sont accessibles à moins de 15 km.
Elle est proposée à l'achat pour 221 000 €.
Contactez notre agence (Valérie PUJADE : 06-66-12-13-51) pour obtenir de plus amples renseignements sur cette maison, sur les modalités de vente ou sur les démarches à suivre.
Mentions légales
Terrain proposé par un partenaire foncier selon disponibilités et autorisation de publicité au prix de 29 000 €. Hors droit d'enregistrement et frais de notaire. Maison proposée, avec un contrat de construction de maison individuelle, dans le cadre de la loi du 19/12/1990, au prix de 192 000 € (Hors branchements et raccordements, papiers peints, peintures, revêtement de sol dans les chambres, qui sont chiffrés dans les travaux qui restent à charge du client. Tarif modifiable sans préavis). Étiquette énergie : A. Différents modèles disponibles pour ce terrain. Assurances et garanties du constructeur comprises (RC professionnelle, décennale, dommage ouvrage).Agence Bruno Petit GHPA de Lannemezan (65300)
- Téléphone :
- 05 62 98 63 87
- Adressse :
- 155, rue Alsace Lorraine
65300 Lannemezan, France
