Maison neuve à
Soues
(65430) Référence :
VC2310529_2
Prix du projet : Maison avec Terrain
prix 238 500 €
- 5 pièces
- 3 chambres
- Surface maison 100 m2
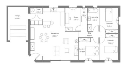
VENTE : maison F5 (100 m²) à Soues
IDÉALEMENT SITUÉE - MAISON 5 PIÈCES NEUVE
En vente : localisée à 5 km de Tarbes, idéalement située dans Soues (65430), Maisons Bruno Petit GHPA Juillan vous présente cette maison de 5 pièces de plain-pied de 100 m² et de 550 m² de terrain.
Conçue de plain-pied, elle offre trois chambres, un bureau, une cuisine et une salle de bains. La maison est neuve.
Cette propriété se trouve dans un quartier prisé. Il y a des écoles primaires à moins de 10 minutes à pied et, parmi lesquelles l'École Élémentaire Barrouquere Teilh. Niveau transports, on trouve la gare Tarbes à moins de 10 minutes en voiture. L'autoroute A64 est accessible à 1 km. Il y a un tennis, deux boulangeries, un commerce, une pharmacie, une épicerie, un bureau de poste et deux boucheries-charcuteries à quelques minutes à peine.
Son prix de vente est de 238 500 €.
Contactez Vincent CAUSSIEU (tél : 06-10-82-28-65) pour obtenir de plus amples renseignements sur la maison ou sur les démarches à suivre. Maisons Bruno Petit GHPA Juillan vous accompagne à toutes les étapes de votre projet et dans tous vos projets immobiliers.
Mentions légales
Terrain proposé par un partenaire foncier selon disponibilités et autorisation de publicité au prix de 60 500 €. Hors droit d'enregistrement et frais de notaire. Maison proposée, avec un contrat de construction de maison individuelle, dans le cadre de la loi du 19/12/1990, au prix de 178 000 € (Hors branchements et raccordements, papiers peints, peintures, revêtement de sol dans les chambres, qui sont chiffrés dans les travaux qui restent à charge du client. Tarif modifiable sans préavis). Étiquette énergie : A. Différents modèles disponibles pour ce terrain. Assurances et garanties du constructeur comprises (RC professionnelle, décennale, dommage ouvrage).Agence Bruno Petit GHPA de Juillan (65290)
- Téléphone :
- 05 62 32 91 45
- Adressse :
- 9 route de Lourdes
65290 Juillan, France
