ACTUELLE 90 35%

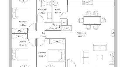
Plan maison 3 pièces 3 chambres Surface maison 75 à 115 m2

Maison contemporaine au design épuré. Elle propose 3 chambres, un cellier et un grand séjour lumineux ouvert sur un bel espace cuisine

Construire ce modèle ?

    * Champs obligatoires

    Vos informations sont traitées par HEXAOM et transmises à un conseiller commercial qui vous contactera afin de répondre à votre demande. Les plans et images présentés sur notre site sont la propriété d’HEXAOM et ne peuvent pas être reproduits sans son accord. Pour retrouver notre politique de protection des données personnelles et exercer vos droits conformément à la « loi informatique et liberté » cliquez-ici.