ACTUELLE 90 + GARAGE 80%

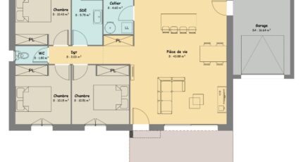
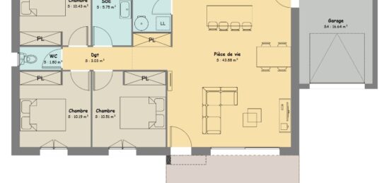
Plan maison 2 pièces 3 chambres Surface maison 70 à 105 m2

Maison contemporaine de plain-pied au design épuré. Elle propose 3 chambres, un cellier et un grand séjour lumineux ouvert sur un bel espace cuisine.
Un plan simple et fonctionnel faisant la part belle à un grand espace de vie. Le garage communiquant sur la cuisine apporte un atout supplémentaire.

Construire ce modèle ?

    * Champs obligatoires

    Vos informations sont traitées par HEXAOM et transmises à un conseiller commercial qui vous contactera afin de répondre à votre demande. Les plans et images présentés sur notre site sont la propriété d’HEXAOM et ne peuvent pas être reproduits sans son accord. Pour retrouver notre politique de protection des données personnelles et exercer vos droits conformément à la « loi informatique et liberté » cliquez-ici.