Canopée 120 GI Sud

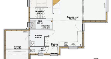
Plan maison 6 pièces 5 chambres Surface maison 114 m2

Canopée 120 : Votre oasis Familiale en bord de mer ou dans le Sud
Découvrez la Canopée 120, une spacieuse maison à étage à l'ossature bois, parfaite pour les familles nombreuses ou pour ceux qui aiment recevoir dans le cadre idyllique du bord de mer ou du sud de la France. Avec ses 120 m² habitables, elle a été pensée pour allier confort, praticité et élégance.
Le rez-de-chaussée (71 m²) est un véritable espace de vie. Son vaste espace jour de 43 m² invite à la convivialité, idéal pour les réunions de famille et les réceptions ensoleillées. Vous y trouverez une suite parentale complète (chambre de 8 m², dressing de 4 m² et salle d'eau de 4 m²), offrant un confort appréciable au quotidien. Un WC (2m²), un cellier (5 m²), une entrée accueillante (3 m²) et un garage intégré de 16 m² complètent ce niveau, pratique pour le quotidien ou pour ranger vos équipements de loisirs.
À l'étage (49 m²), place au repos avec quatre chambres confortables (11 m², 10 m², 10 m² et 10 m²), parfaites pour les enfants ou les invités. Une salle d'eau (4 m²), un WC (2 m²) et un dégagement (3 m²) assurent la fonctionnalité de cet espace.
La construction en ossature bois de la Canopée 120 offre des avantages considérables, particulièrement sous les climats chauds. Elle assure une isolation thermique et phonique de très haute performance, garantissant une fraîcheur intérieure agréable pendant les chaudes journées d'été et une quiétude appréciable, tout en réalisant des économies d'énergie significatives. L'utilisation du bois, un matériau renouvelable et à faible énergie de production, en fait un choix écologique qui réduit l'empreinte carbone de votre habitat. De plus, la rapidité de mise en oeuvre et l'ambiance saine qu'offre le bois sont des atouts indéniables pour cette maison, conçue pour vous offrir un cadre de vie exceptionnel près de la mer ou sous le soleil du sud.

Construire ce modèle ?

    * Champs obligatoires

    Vos informations sont traitées par HEXAOM et transmises à un conseiller commercial qui vous contactera afin de répondre à votre demande. Les plans et images présentés sur notre site sont la propriété d’HEXAOM et ne peuvent pas être reproduits sans son accord. Pour retrouver notre politique de protection des données personnelles et exercer vos droits conformément à la « loi informatique et liberté » cliquez-ici.