EMERAUDE 60%

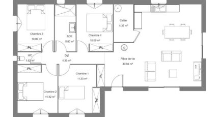
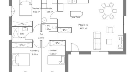
Plan maison 4 pièces 3 chambres Surface maison 90 à 110 m2

Cette maison contemporaine aux façades extérieures originales dissocie bien un coin nuit avec 3 chambres et un vaste espace jour ouvert vers l'extérieur par de grandes baies.

Construire ce modèle ?

    * Champs obligatoires

    Vos informations sont traitées par HEXAOM et transmises à un conseiller commercial qui vous contactera afin de répondre à votre demande. Les plans et images présentés sur notre site sont la propriété d’HEXAOM et ne peuvent pas être reproduits sans son accord. Pour retrouver notre politique de protection des données personnelles et exercer vos droits conformément à la « loi informatique et liberté » cliquez-ici.