FARANDOLE

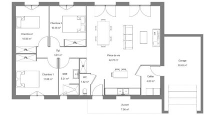
Plan maison 4 pièces 3 chambres Surface maison 75 à 110 m2

Véritable maison familiale proposant de 3 à 4 chambres, garage et auvent. La grande pièce de vie donne sur une cuisine semi-ouverte.

Construire ce modèle ?

    * Champs obligatoires

    Vos informations sont traitées par HEXAOM et transmises à un conseiller commercial qui vous contactera afin de répondre à votre demande. Les plans et images présentés sur notre site sont la propriété d’HEXAOM et ne peuvent pas être reproduits sans son accord. Pour retrouver notre politique de protection des données personnelles et exercer vos droits conformément à la « loi informatique et liberté » cliquez-ici.