galaxie 85 60%

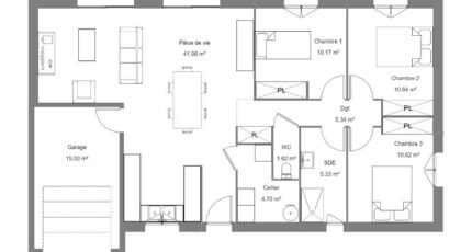
Plan maison 2 pièces 3 chambres Surface maison 65 à 100 m2

Cette maison contemporaine 3 chambres avec garage intégré vous offre également un cellier et un porche d'entrée. Le séjour ouvert sur la cuisine est spacieux et lumineux.

Construire ce modèle ?

    * Champs obligatoires

    Vos informations sont traitées par HEXAOM et transmises à un conseiller commercial qui vous contactera afin de répondre à votre demande. Les plans et images présentés sur notre site sont la propriété d’HEXAOM et ne peuvent pas être reproduits sans son accord. Pour retrouver notre politique de protection des données personnelles et exercer vos droits conformément à la « loi informatique et liberté » cliquez-ici.