GERSOISE 35%

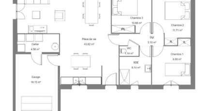
Plan maison 4 pièces 3 chambres Surface maison 93 m2

La maison Gersoise* ,surface habitable 93,95m² - 3 chambres - modèle plain-pied avec garage. - * Illustration personnalisée non contractuelle.

Construire ce modèle ?

    * Champs obligatoires

    Vos informations sont traitées par HEXAOM et transmises à un conseiller commercial qui vous contactera afin de répondre à votre demande. Les plans et images présentés sur notre site sont la propriété d’HEXAOM et ne peuvent pas être reproduits sans son accord. Pour retrouver notre politique de protection des données personnelles et exercer vos droits conformément à la « loi informatique et liberté » cliquez-ici.