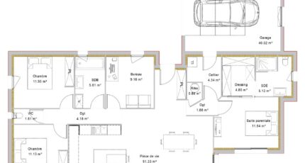
Cette maison en T contemporaine avec une pièce de vie spacieuse et lumineuse comprend 3 chambres et un bureau. Une suite parentale privative avec dressing et salle d'eau apporte un confort supplémentaire. Elle possède également un double garage et un cellier.