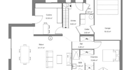
PRELUDE Plan maison 5 pièces 4 chambres Surface maison 132 m2 Visite 360° Visite 360° Voir les plans L'espace, la mezzanine, les combles aménagées, le garage intégré. Agrandir l'image… Agrandir l'image… Agrandir l'image… Agrandir l'image… Agrandir l'image… Agrandir l'image… Agrandir l'image… Afficher PRELUDE Maisons Bruno Petit GHPA Afficher PRELUDE Maisons Bruno Petit GHPA Afficher PRELUDE Maisons Bruno Petit GHPA Afficher PRELUDE Maisons Bruno Petit GHPA Construire ce modèle ? Prénom : * Nom : * Téléphone :* Votre adresse électronique :* Département de construction :* Département de construction09 - Ariège31 - Haute-Garonne32 - Gers40 - Landes47 - Lot-et-Garonne64 - Pyrénées-Atlantiques65 - Hautes-Pyrénées Votre message Bonjour, Je souhaite avoir plus d'informations sur ce modèle de maison. Cordialement.* Champs obligatoiresVos informations sont traitées par HEXAOM et transmises à un conseiller commercial qui vous contactera afin de répondre à votre demande. Les plans et images présentés sur notre site sont la propriété d’HEXAOM et ne peuvent pas être reproduits sans son accord. Pour retrouver notre politique de protection des données personnelles et exercer vos droits conformément à la « loi informatique et liberté » cliquez-ici. Fermer le formulaire de contact Retour aux modèles de maisons Afficher les images en plein écran