Roquelaure 35%

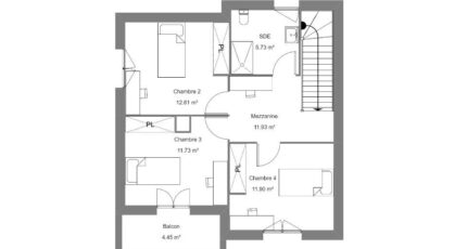
Plan maison 5 pièces 4 chambres Surface maison 123 m2

Maison familiale et contemporaine avec 4 chambres dont 1 suite parentale. L'espace nuit à l'étage avec sa propre salle de bains demeure au calme, bien séparé de la grande pièce de vie.
Son garage à toit plat lui confère une touche design.

Construire ce modèle ?

    * Champs obligatoires

    Vos informations sont traitées par HEXAOM et transmises à un conseiller commercial qui vous contactera afin de répondre à votre demande. Les plans et images présentés sur notre site sont la propriété d’HEXAOM et ne peuvent pas être reproduits sans son accord. Pour retrouver notre politique de protection des données personnelles et exercer vos droits conformément à la « loi informatique et liberté » cliquez-ici.