VIGNEMALE

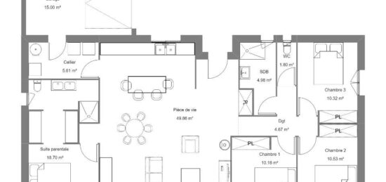
Plan maison 6 pièces 3 chambres Surface maison 120 m2

La maison Vignemale* ,surface habitable RdC 71,32m² - surface habitable Etage 49,39m² -4 chambres - modèle avec étage et garage. - * Illustration personnalisée non contractuelle.

Construire ce modèle ?

    * Champs obligatoires

    Vos informations sont traitées par HEXAOM et transmises à un conseiller commercial qui vous contactera afin de répondre à votre demande. Les plans et images présentés sur notre site sont la propriété d’HEXAOM et ne peuvent pas être reproduits sans son accord. Pour retrouver notre politique de protection des données personnelles et exercer vos droits conformément à la « loi informatique et liberté » cliquez-ici.